深圳市伊俐信科技有限公司
消防產品,認證,檢測,技術,管理,咨詢服務中心
消防產品,認證,檢測,技術,管理,咨詢服務中心
2022-06-08 11:39:17 責任編輯:深圳市伊俐信科技有限公司 瀏覽:0
正文如下:
安裝的一般技術要求:
1、風機盤管安裝前應檢查應進行機組的外觀檢查、三速運轉和水壓試驗。
2、管道與風機盤管連接時宜采用軟管連接 。
3、風機盤管的供回水閥門、過濾器應靠近盤管安裝,且全部在凝水盤的上方 。
4、風機盤管吊裝時,吊裝應牢固、位置正確,并有0.003的坡度坡向凝水盤的出口,吊桿與盤管相連處應用雙螺母緊固。暗裝的盤管吊頂應留有活動檢查門,便于機組和維修 。
5、風機盤管與供回水管道連接操作時應采用專用工具,防止盤管接口,凝水盤與凝結水管連接處應采用200mm長的塑料軟管并用專用管夾夾緊 。
6、風機盤管應在管道沖洗后再與之連接,以防止盤管堵塞;如果安裝有過濾器應在系統調試運行后進行拆洗才能交付 。

7、風機盤管機組安裝前應進行單機三速試運轉及水壓試驗,試驗壓力為系統工作壓力的1.5倍,不漏為合格。

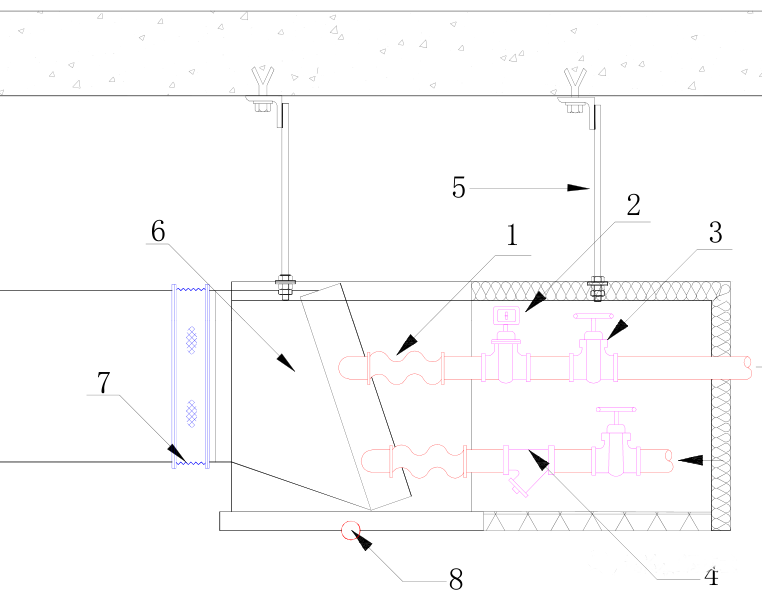
1-軟連接;2-電動二通閥;3-截止閥;4-Y型過濾器;5-吊桿;6-風機盤管;7-風管軟接;8-凝結水排水 。
風機盤管的進出水閥門應盡可能靠近凝水盤安裝,以免閥桿的滴水漏人房間。風管、回風箱及風口與風機盤管機組連接處應嚴密、牢固。排水坡度應正確,安裝時風機盤管可稍微坡向凝結水排水口。


風機盤管安裝示意圖





臥式風機盤管吊桿與樓板固定的節點

風機盤管現場安裝式樣(不帶回風箱)

風機盤管現場安裝式樣(帶回風箱)
全國統一服務熱線
139 2463 7548
郵箱 :591053467@qq.com
總部地址:深圳市光明區鳳凰街道南太云創谷產業中心3棟6樓