深圳市伊俐信科技有限公司
消防產品,認證,檢測,技術,管理,咨詢服務中心
消防產品,認證,檢測,技術,管理,咨詢服務中心
2022-05-31 14:18:57 責任編輯:深圳市伊俐信科技有限公司 瀏覽:0

一《消防給水及消火栓系統技術規范圖示》15S909,墻壁式消防水泵接合器圖示采用共管安裝。

二《自動噴水滅火系統設計圖集》19S910,消防水泵接合器圖示采用共管安裝。

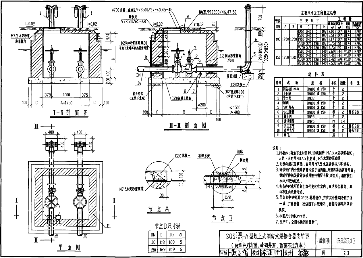
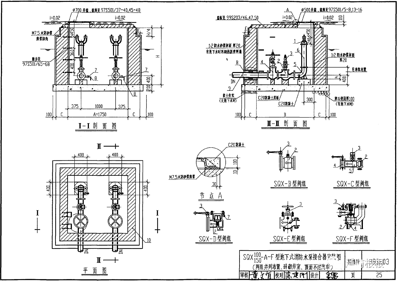
三《消防水泵接合器安裝圖集》99(03)S203,地上式、地下式消防水泵接合器圖示沒有采用共管安裝。


四、現實應用中,為了節省管道和閥門,往往采用共管安裝,雖然圖集之間存在矛盾,沒有給出統一答案,但是根根不建議采用共管安裝,建議每個消防水泵接合器分別單獨接入管網。
1、消防水泵接合器的數量是按照流量計算而得來的,共管安裝可能會影響流量和壓力等參數,從而無法達到要求。
2、共管安裝還會降低可靠性,一旦共管處出現故障,其所連接的所有消防水泵接合器都將無法正常使用。

全國統一服務熱線
139 2463 7548
郵箱 :591053467@qq.com
總部地址:深圳市光明區鳳凰街道南太云創谷產業中心3棟6樓